Zum Hauptinhalt springen

Ferienwohnung 2

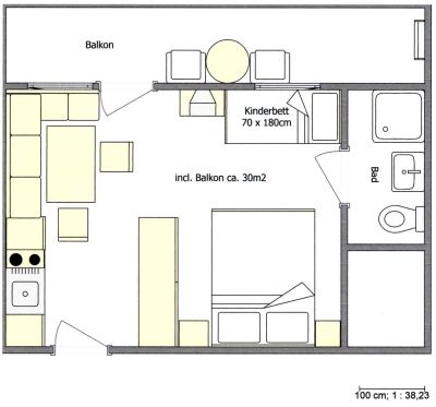
Unsere nette kleine Wohnung Nr. 2 für 2 Personen und ein Kind ist ausgestattet mit einem Wohn-Schlafraum mit einem Doppelbett und einem Kinderbett, sowie einer Küchenzeile und einer Sitzecke.

Sie bietet außerdem ein Badzimmer mit Dusche und WC, sowie einem schönen Balkon mit herrlichem Ausblick.